Проект №106 Каркасный дом для большой семьи 8х8

каркас из строганой доски
Создайте свой план для этого проекта
и отправьте его нам на расчет в один клик.
Каркасный дом (150 мм) 8х8 Толщина утепления 150 мм 3171300 Заказать
Каркасный дом (200 мм) 8х8 Толщина утепления 200 мм 3491300 Заказать

Для того, чтобы адаптировать под себя уже готовый проект и получить свою персональную планировку, воспользуйтесь нашим планировщиком.

При помощи планировщика можно создать эскизы, схемы, чертежи, планы дома с эркером, мансардой, с несколькими спальнями. Вы получите личный проект, 100% отвечающий вашим запросам.

Вы можете выбрать нужный тип кровли. Крыша может быть четырехскатная, двускатная и вальмовая. Двухскатная крыша - самая востребована в малометражных постройках.

Популярные размеры: мини - до 50м2 (как правило, одноэтажные); компактные - от 70 до 100 квадратов (обычно двухэтажные); большие - от 150 кв. М и больше.

Предлагаем дуплексы - каркасные постройки с 2-мя входами на две семьи. Эти дома предполагаются для нескольких хозяев и делятся на две части, для каждой половины - свой отдельный вход.


Наши работы

Перейти в галерею


Комплектация

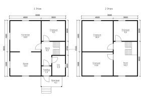
Площадь застройки: 68 м2
Длина: 8 м
Ширина: 8 м
Общая площадь: 125 м2
Исполнение Под ключ (с отделкой)
Фундамент Свайно-винтовой или ж/б сваи (рассчитываются отдельно).
Гидроизоляция фундамента Рубероид в два слоя.
Основание (обвязка) Из обрезного бруса 150х150 мм. 150х200 мм. согласно выбранной толщине утепления. Торцевая доска строганая 45х145/45х195+/-5 мм. согласно выбранной толщине утепления. Обработка антисептиком.
Цокольное перекрытие Строганая доска камерной сушки 45х145/45х195+/-5 мм. с шагом 590 мм. Обработка антисептиком.
Пол черновой Обрезная доска камерной сушки 20х100 мм.
Влаго-ветрозащита чернового пола Мембрана Ондутис А100.
Внешние стены Стойки каркаса из строганой доски камерной сушки 45х145/45х195+/-5 мм. с шагом 590 мм. Верхняя двойная и нижняя обвязки из строганой доски камерной сушки 45х145/45х195+/-5 мм. Разгрузочный ригель из строганой доски 45х145+/-5 мм. Укосины из строганой доски 20х95 мм.
Перегородки Стойки каркаса из строганой доски камерной сушки 45х95+/-5 мм. с шагом 590 мм. Верхняя двойная и нижняя обвязки из строганой доски 45х95+/-5 мм. Разгрузочный ригель из строганой доски камерной сушки 45х145+/-5 мм. Укосины из строганой доски камерной сушки 20х95 мм.
Сборка каркаса На гвозди.
Высота от пола до потолка Дом одноэтажный: 2,5 м. Дом с мансардой: 1-ый этаж- 2,5 м.
2-ой этаж (мансарда)- 2,3 м.
Дом в полтора и два этажа:
1-ый этаж 2,5 м.
2-ой этаж 2,4 м. в полутораэтажном доме
2,5 м. в двухэтажном доме.
Внешняя отделка стен Имитация бруса камерной сушки, сорт АВ, толщиной 17 мм. Монтаж через строганый брусок камерной сушки 45х45+/-5 мм. (вентилируемый фасад). Влаго-ветрозащитная мембрана- Ондутис А100.
Внутренняя отделка стен, перегородок Евровагонка камерной сушки, сорт АВ, толщиной 12,5 мм. по строганой рейке 20х40+/-5 мм. либо ГКЛ 12,5 мм.
Отделка потолка Евровагонка камерной сушки, сорт АВ толщиной, 12,5 мм. по строганой рейке 20х40+/-5 мм. либо ГКЛ 12,5 мм.
Пол чистовой Шпунтованная доска камерной сушки толщиной 35-36 мм. сорт АВ. по строганой рейке 20х40+/-5 мм. либо шпунтованная ДСП 16 мм. по разряженной обрешётке из строганой доски камерной сушки 20х95+/-5 мм.
Утепление (пол, потолок) Минеральная вата Knauf 150/200 мм. согласно выбранной толщине утепления.
Утепление стен Плитный утеплитель Rockwool, толщиной 150/200 мм. согласно выбранной толщине утепления.
Звукоизоляция перегородок Плитный утеплитель Rockwool, толщиной 100 мм.
Пароизоляция (стены, перегородки, пол, потолок) Плёнка Ондутис R70. Дополнительная герметизация нахлёстов/примыканий пароизоляционной плёнки клейкой лентой Delta.
Окна Двухкамерные стеклопакеты ПВХ белого цвета, профиль 60 мм. В комплекте: отливы, подоконники, москитные сетки.
Двери Входная- металлическая, утеплённая (Россия). Межкомнатные- филёнчатые.
Наличники на окна и двери Наличник деревянный, строганый, камерной сушки 70-90 мм. с двух сторон.
Лестница (при наличии второго этажа) Деревянная, одно или двухмаршевая. Перила- заводские резные, балясины- заводские точеные, устанавливаются стартовые точёные столбы. Ступени 40х200 мм. Тетива лестницы- 90х140 мм.
Крыша Двускатная, ломаная или вальмовая в соответствии с проектом.
Стропильная система Выполнена из строганой доски камерной сушки 45х145/45х195+/-5 мм. Шаг установки стропил 590 мм.
Обрешётка Выполняется из строганой доски камерной сушки толщиной 20х95+/-5 мм. Шаг крепления обрешетки 350 мм. Контробрешётка выполняется из строганого бруска камерной сушки 45х45+/-5 мм. Крепится по стропилам (вентиляционный зазор).
Подкровельная мембрана Ондутис А100
Кровельное покрытие (на выбор) Металлочерепица 0,45 мм. Цвет на выбор.
Фронтоны (при наличии) Каркас из строганой доски камерной сушки 45х145/45х195+/-5 мм. Обшиваются имитацией бруса камерной сушки, сорт АВ, толщиной 17 мм. Монтаж через строганый брусок камерной сушки 45х45+/-5 мм. (вентилируемый фасад). Влаго-ветрозащитная мембрана- Ондутис А100. Монтаж вентиляционных решёток.
Свесы крыши Ширина 400 мм. Подшиваются вагонкой камерной сушки, сорт АВ.
Терраса/балкон (при наличии) Устанавливаются опорные столбы из строганного бруса камерной сушки 140х140 мм.
Отделка потолка террасы/балкона Евровагонка камерной сушки толщиной 12,5 мм. сорт АВ.
Пол террасы/балкона Шпунтованная доска камерной сушки толщиной 35-36 мм. сорт АВ.
Ограждение террасы/балкона Перила- строганая доска. Балясины- точеные, фигурные. Либо ограждение в скандинавском стиле. Устанавливаются ступени у входа.
Допуск на геометрические параметры Составляет +/- 50 мм по длине с каждой стороны.
Допускается стыковка имитации бруса, вагонки и половой доски По всему периметру стен дома (если ширина и длина дома более 6,0 метров). Вагонки и доски пола в каждой отдельной комнате.
Допуски по имитации бруса, вагонке, доске +/- 5 мм.
В стоимость включена Доставка комплекта материала в радиусе 500 км. от г. Пестова Новгородской области и сборка дома на вашем участке.
Гарантия 5 лет.
Бытовка строительная 2,0х3,0 м. каркасно-щитовая. Стоимость 23000 руб. Остаётся на участке Заказчика.
Туалет 1,0х1,0 м. каркасно-щитовой. Стоимость 12000 руб. Остаётся на участке Заказчика.
Генератор Стоимость аренды на весь срок строительства 15000 руб. ГСМ за счёт Заказчика.

Постройка дома осуществляется в 2-х видах: под ключ и под усадку, когда дом будет отстаиваться в течение определенного времени.

В период холодов лучше всего строить дома в холодную погоду, чтобы каркас не отсырел, в летнее время - не в дождливую.

Наиболее подходящими для дачи или сада считают домики на винтовых сваях, на нашем сайте вы увидите одноэтажные и полуторатажные варианты.

Для постоянного проживания, предлагаем теплые и надежные коттеджи и дома на ленточном и плитном фундаменте.

Мы можем предложить два варианта толщины утепления: 150 мм и 200 мм. Каркасные дома с толщиной стен 150 мм получаются дешевле, но не настолько энергоэффективными.

Дополнительные услуги


Каркасный дом с , по проекту 106 полутораэтажный с теплоизолированной двускатной строительной конструкцией крыши, выделяется экологической безопасностью, за счет использования стружечных плит, минеральной и базальтовой ваты, а это предоставляет высокую морозостойкость, оптимальный микроклимат в жилище. Размеры постройки составляют 8х8 м., общая пригодная для жизни площадь - 125 кв.м.. Наша организация в самые короткие сроки возведет дом из каркаса по индивидуальному или типовому проекту в Нижнем Новгороде в любое время года и на любом типе грунта.

Популярные проекты


Дома из бруса 4х5 Каркасные дома с террасой Каркасные дома 4х5
хит продаж
Тип:
Общая площадь: 2
2605300
от 2481300
хит продаж
Тип: с большой террасой
Общая площадь: 2
4043800
от 3851300
хит продаж
Тип:
Общая площадь: 2
3550300
от 3381300
Дома из бруса

Заказать или задать вопрос



Заказать или задать вопрос

Заказать звонок